–
Sant Antoni de Vilamajor, actualment.
DESCRIPCIÓ:
EFAarquitectes s’encarrega de tot el procés del projecte de Reparcel·lació i d’Urbanització de l’àmbit en qüestió.
Projecte de Reparcel·lació:
- Elaboració de l’aixecament topogràfic.
- Estudi de l’estructura de la propietat i titularitats, estat de càrregues, gravàmens i drets existents.
- Preparació i redacció del projecte de reparcel·lació segons legislació vigent.
Projecte d’Urbanització:
- Tots els treballs previs i elaboració de la documentació necessària segons llei
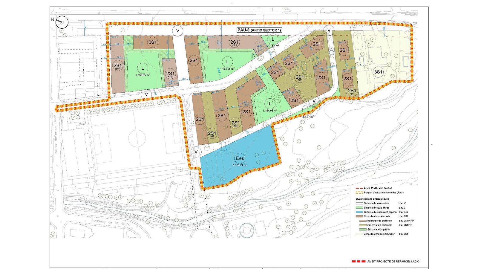
La urbanització d’aquest PAU 8 queda articulada principalment pel traçat del carrer Barcelona, que travessa el polígon, primer de forma paralꞏlela a la carretera, per després fer un gir i connectar-se amb aquesta, i per la urbanització del lateral de la carretera, de l’Av Alfons I, amb un vial lateral i un parterre enjardinat de separació amb la calçada de la BP-5107. Els espais a urbanitzar es complementen amb la consolidació del Passeig Font d’en Robet, perllongant aquesta via fins al vial lateral de la carretera, i deixant-lo preparat per que es pugui connectar en un futur amb el carrer Girona, creuant amb un pont per sobre de la Riera de Canyes. El projecte també contempla la urbanització de diferents zones verdes repartides per l’àmbit del PAU 8, així com d’uns passatges en plataforma única, amb prioritat pels vianants, que han de completar la xarxa viària que donarà accés als diferents habitatges i equipaments que es preveu es puguin desenvolupar en aquest sector.
L’àmbit d’actuació total és de 33.000m2.
PROMOTOR:
Ajuntament de Sant Antoni de Vilamajor.
EQUIP:
EQUIP REDACTOR: EFAARQUITECTES Eduard Fenoy (Arquitecte urbanista), Marc Fenoy, Mireia Salvans, Enric Vidal, Marta Garcés, Mireia Sanahuja(Arquitectes) i Marc Fenoy (Arquitectes tècnics).
ENGINYERIA VALL
EFAARQUITECTES, Arquitectes a Sabadell i Barcelona
EFAarquitectes és un despatx d’arquitectura i urbanisme de Sabadell (Vallès Occidental) format per un equip multidisciplinar d’arquitectes i professionals amb àmplia experiència, dedicats a l’urbanisme, paisatgisme, arquitectura i rehabilitació/reformes. EFAarquitectes (Eduard Fenoy i Associats, SLP) trobarà la millor solució a la gestió urbanística, la promoció inmobiliària d’obra nova, la rehabilitació, l’edificació i les petites i grans reformes d’immobles a Sabadell i a nivell nacional. Contacta’ns i t’informem sense compromís.
Keywords: Sabadell arquitecte, arquitectes, EFAarquitectes, Eduard Fenoy i Associats, SLP, arquitectura Sabadell, urbanisme Sabadell, arquitectes Sabadell, reforma arquitectes Sabadell, urbanisme Barcelona.

